Estepona · Buenas Noches Appartement · Nieuwbouw Woningen

#Ref: NB-69765
€ 1.250.000
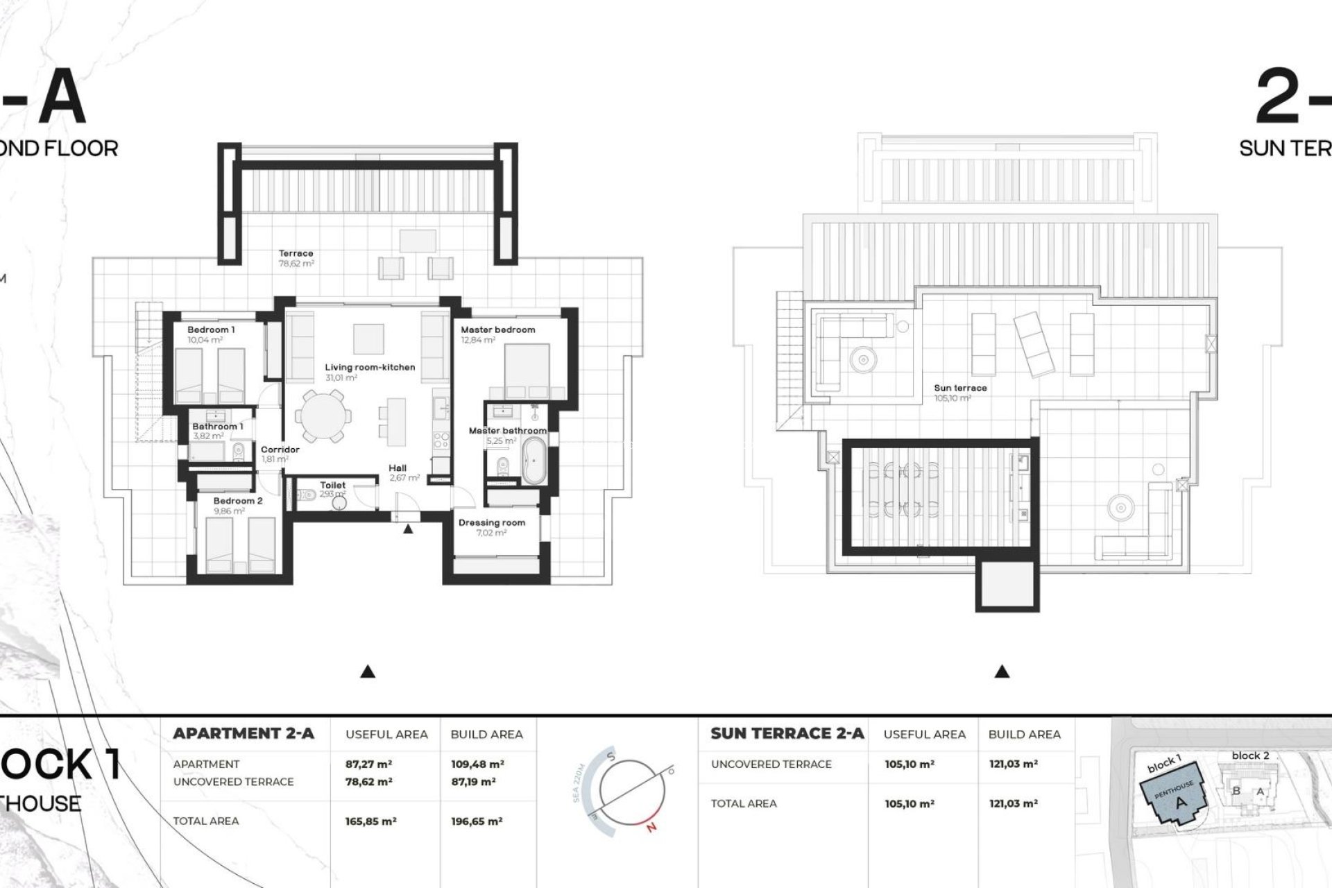
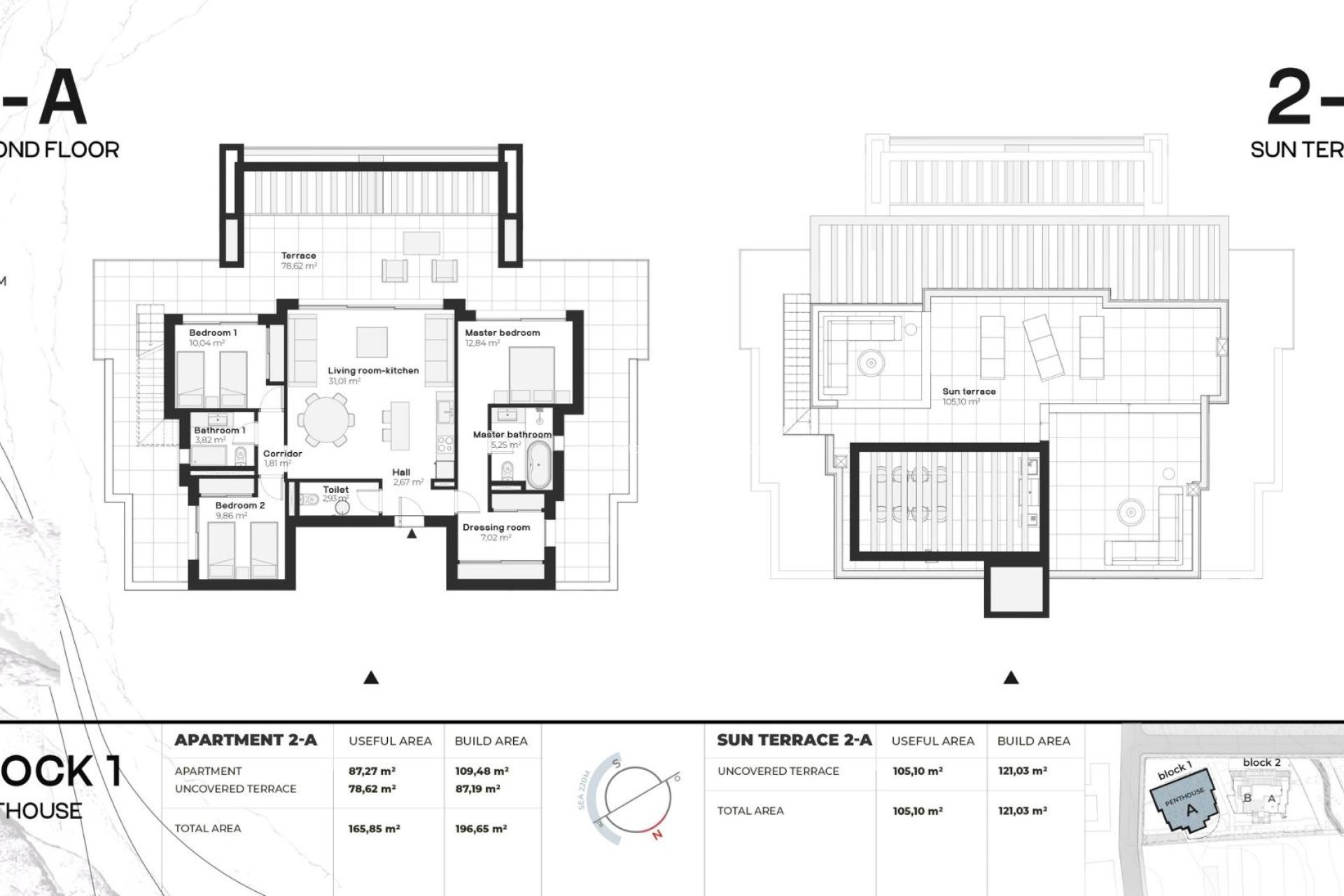
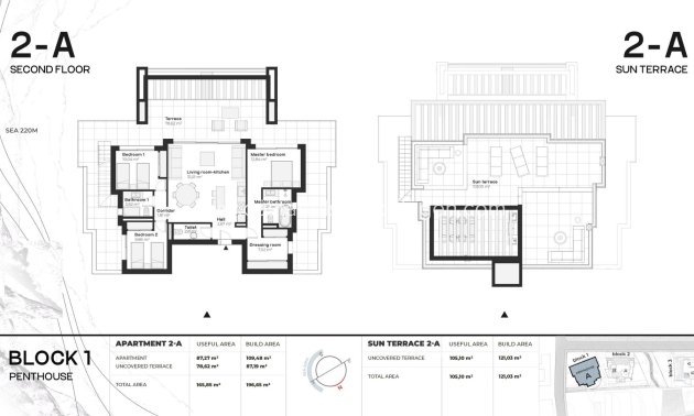
  • Gebouwd 109m2
  • Slaapkamers 3
  • Badkamers 2
  • Zwembad Ja

Estepona · Buenas Noches Appartement · Nieuwbouw Woningen

Beschrijving

NYBYGGET BOLIGKOMPLEKS NÆR ESTEPONA

Kenmerken

Slaapkamers: 3
Badkamers: 2
Gebouwd: 109m2
Oppervlakte : 97m2
Zwembad: Ja
Afstand naar het strand: 220 Mts.
Terrace: 183 Msq.
Beach: 220 Meters
Storage / Trastero
Gemeenschappelijk zwembad
Omheind
Solarium
Aantal parkeerplaatsen: 1
Locatie: Kust, Urbanisatie
Air Conditioning: Pre-Installed
Dichtbij scholen
Dichtbij commercieel centrum
Lift
Tweepersoons Slaapkamers: 3
Dichtbij bushalte
Bewoonbare oppervlakte: 97 m2
Zeezicht
Toilet: 1
Parkeerplaats

Plaats

Vraag om informatie

Neem contact op met Costa del Sol Woningen

Responsable del tratamiento: VDM ESTATES GROUP SL, Finalidad del tratamiento: Gestión y control de los servicios ofrecidos a través de la página Web de Servicios inmobiliarios, Envío de información a traves de newsletter y otros, Legitimación: Por consentimiento, Destinatarios: No se cederan los datos, salvo para elaborar contabilidad, Derechos de las personas interesadas: Acceder, rectificar y suprimir los datos, solicitar la portabilidad de los mismos, oponerse altratamiento y solicitar la limitación de éste, Procedencia de los datos: El Propio interesado, Información Adicional: Puede consultarse la información adicional y detallada sobre protección de datos Aquí.
WhatsApp