Mijas · Riviera Del Sol Dom · Nowy budynek

#Ref: NB-23201
€ 1.112.000
  • Powierzchnia 150m2
  • Sypialnie 3
  • Łazienki 2
  • Basen Tak

Mijas · Riviera Del Sol Dom · Nowy budynek

Opis

Nowe domy szeregowe z widokiem na morze w pobliżu pola golfowego Miraflores w Calahonda

Szczegóły oferty

Sypialnie: 3
Łazienki: 2
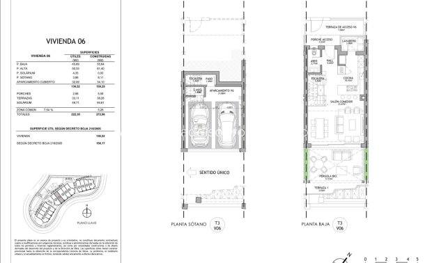
Powierzchnia: 150m2
Przydatne: 136m2
Basen: Tak
Odległość od plaży: 1400 Mts.
Views: Sea
Number of Parking Spaces: 2
Under-Build / Basement
Useable Build Space: 136 Msq.
Beach: 1400 Meters
Space
Laundry Room
Heating: Yes
Toilet: 1
Communal Pool
Gated
Solarium: Yes
Location: Coastal, Urbanisation
Terrace: 85 Msq.
Near Schools
Near Commercial Center
Double Bedrooms: 3
Near Bus Route

Lokalizacja

Poproś o informacje

Skontaktuj się z nieruchomościami Costa del Sol Woningen

Responsable del tratamiento: VDM ESTATES GROUP SL, Finalidad del tratamiento: Gestión y control de los servicios ofrecidos a través de la página Web de Servicios inmobiliarios, Envío de información a traves de newsletter y otros, Legitimación: Por consentimiento, Destinatarios: No se cederan los datos, salvo para elaborar contabilidad, Derechos de las personas interesadas: Acceder, rectificar y suprimir los datos, solicitar la portabilidad de los mismos, oponerse altratamiento y solicitar la limitación de éste, Procedencia de los datos: El Propio interesado, Información Adicional: Puede consultarse la información adicional y detallada sobre protección de datos Aquí.
WhatsApp